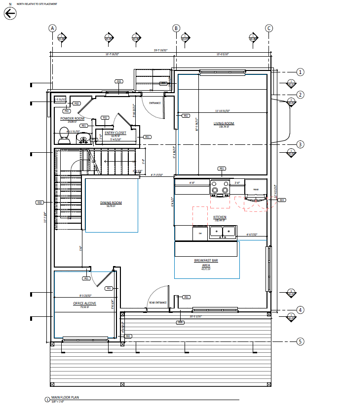
Single Family House, Semester 1

This project was my first introduction into the world of architecture - a simple house for a client of my choosing. I learned so much on this project about design, building code, and building science. It was my first time putting a drawing package together, and I came to appreciate the hard work and dedication it takes to complete a project of any size.

Previous
Previous

Mazi - Semester 2