Bygholm Nest -Renovation

Located on Schuttesvej 17, 8700 Horsens, Denmark, this project takes on the renovation of a former Aarhus University research facility by turning it into a newly updated bed and breakfast/tourist information centre. The original building was built around 1877 with an addition to the east built in 1925. It was eventually occupied by the Danish Institute of Agricultural Science, and used as a research facility to test biogas production, air physics, and fertilizer distribution. After 2008, the building sat unoccupied until the land was purchased by Horsens Municipality in 2021.

My group and I’s task was to convert this old building into a historical bed and breakfast, along with a tourist information centre. We also added a restaurant to the north side, fire pits, and free to use outdoor shelters . The project was named “Bygholm Nest” as the building is situated in the beautiful Bygholm Park in Horsens, Denmark.

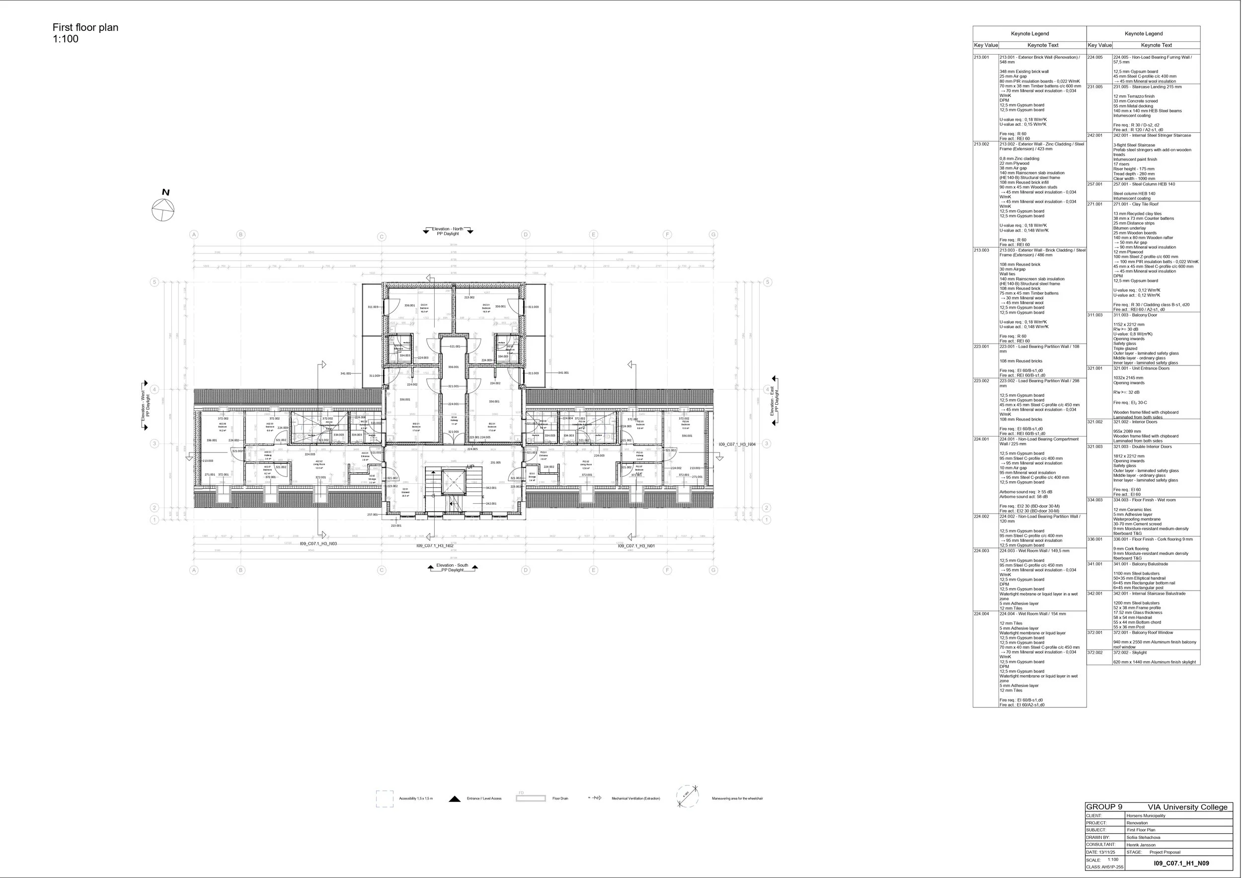
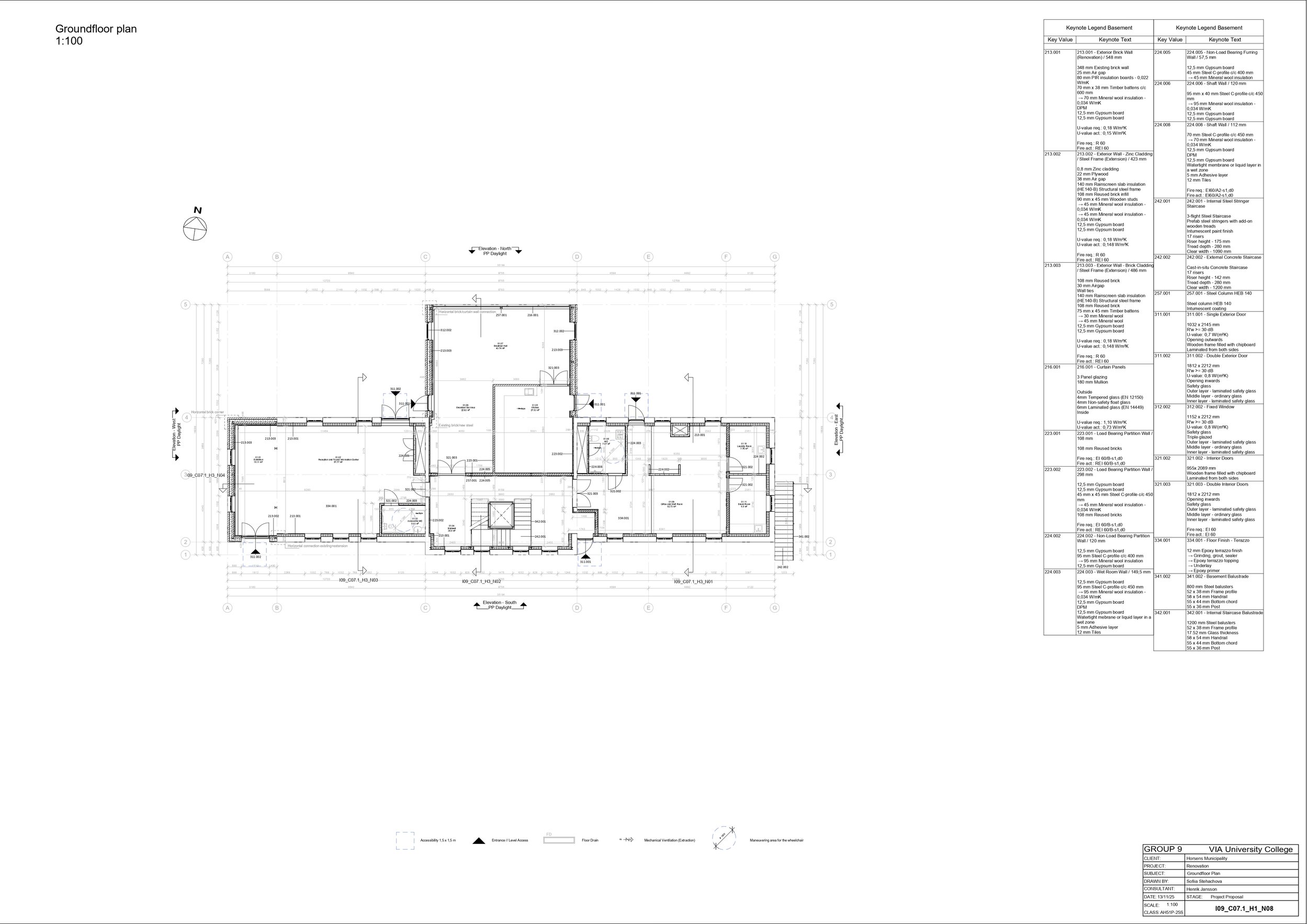
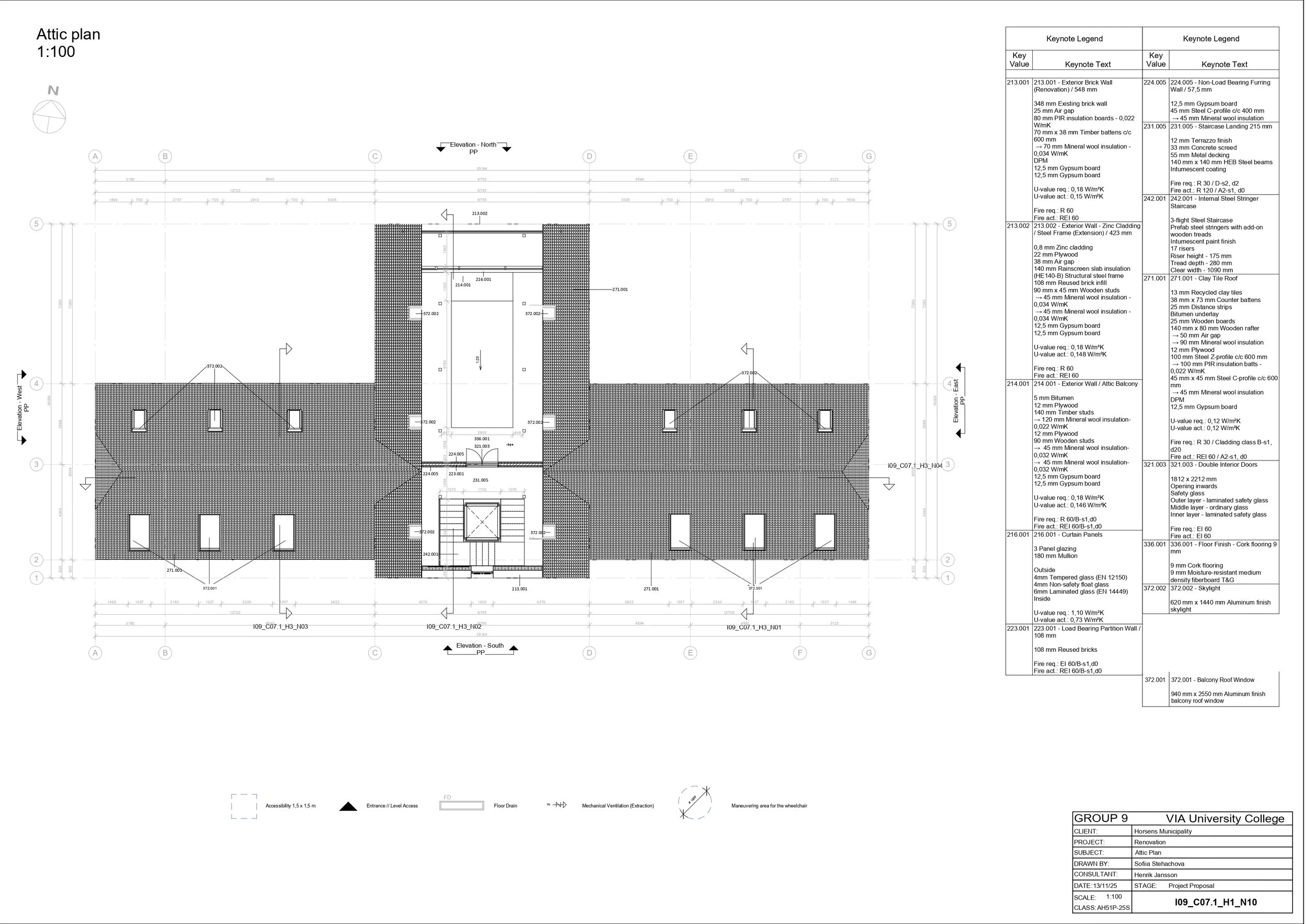
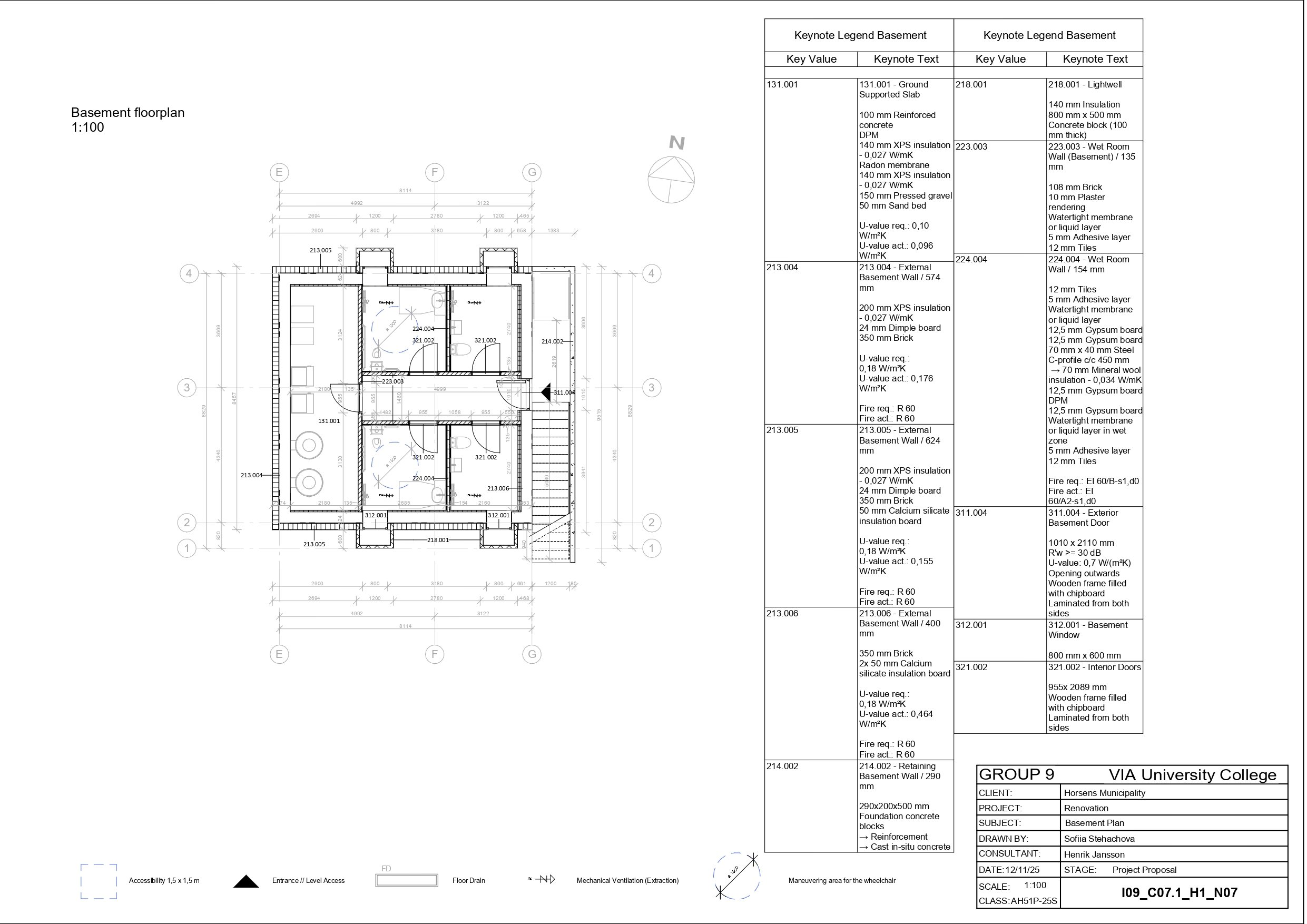
Main Sheets

These are sheets I did not work on, however they are displayed to show some context towards the project.

Detail Contributions

This is everything I worked on in the project, and the images are hyperlinked to individual PDFs for further clarification and reference.

Previous
Previous

LPE Project

Next
Next

SEKO Construction Bidding